Descrierea
Lotul: 12-V
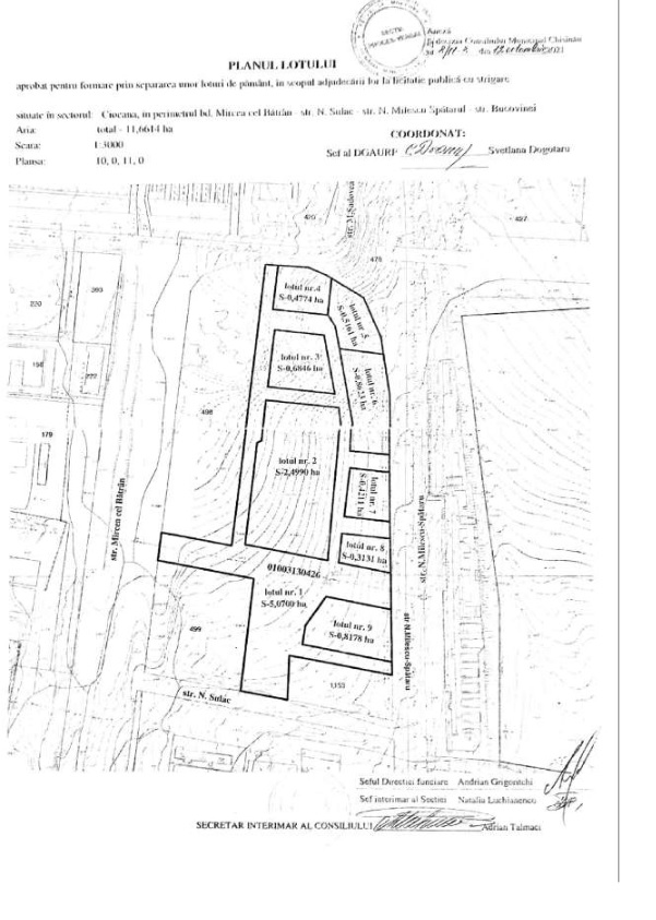
Locaţie: mun. Chişinău
Sectorul: Ciocana
Adresa: perimetrul bd. Mircea cel Bătrîn - str. N. Sulac – str. N. Milescu Spătarul - str. Bucovinei
nr. cadastral: 0100313.426 (o porțiune)
Destinație:Ansamblu rezedențial, zona C2-R6
Prețul inițial: 20 000 000 lei
Suprafața: 0,8178 ha

